Ombygging: klinisk kompetansesenter

I hovedbygget på Campus Bodø kommer en ny fremtidsrettet undervisningsarena for Fakultet for sykepleie og helsevitenskap, med funksjoner man kan forvente å finne på et ekte sykehus.

Offisiell åpning 21. november

Byggeprosjektet nærmer seg slutten, og vi nærmer oss åpningen av et nytt klinisk kompetansesenter i Bodø.

For mer informasjon:

Offisiell åpning av klinisk kompetansesenter i Bodø

Klinisk kompetansesenter ved Nord universitet

Ombyggingsprosjektet for klinisk kompetansesenter i hovedbygget har oppstart medio august 2024. Ombyggingsprosjektet vil foregå parallelt med studiestart og undervisning 2024/2025.

Tre sykepleiere som sitter på kanten av en sykeseng.

Arealer berørt av ombyggingen:

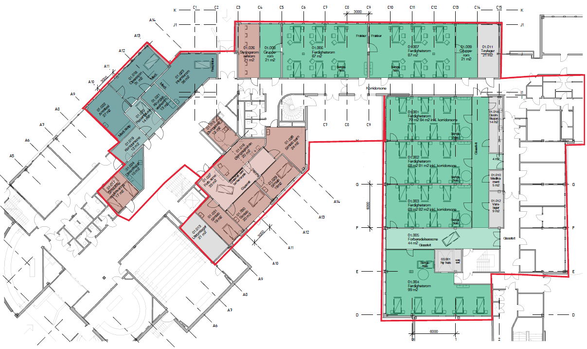
Arealene som inngår i ombygningen, vil ikke være mulig å bruke til undervisning eller annen aktivitet i denne perioden. Kartene under viser hvilke arealer som vil bli berørt.

Karttegning som viser deler av et bygg. Fargemerking på rom som berøres av en ombygging
1. etasje i hovedbygget, rød markering viser hvilke arealer som inngår i ombyggingen.

Karttegning som viser deler av et bygg. Fargemerking på rom som berøres av en ombygging
Underetasjen i hovedbygget, rød markering viser hvilke arealer som inngår i ombyggingen

Faktaboks

  • Ombygginggingen er en del av prosjektet "Blått bygg", som omfatter ​nybygg for fakultet for biovitenskap og akvakultur​​​ (Noatun), og ombygging av eksisterende lokaler for fakultet for sykepleie og helsevitenskap
  • Ombyggingen dekker ca. 1700 kvadratmeter i eksisterende campusbygg
  • Totalentreprenør: HENT AS
  • Oppstart ombygging i hovedbygget: ca 15. august 2024
  • Ferdigstillelse nytt klinisk kompetansesenter: Høst 2025

Kontaktperson


Map by MazeMap